Modular

Kingsley Modular Hemsworth 92618K

Built by: Cavco Nappanee

3D Home Tour

No 3d Tour Available

About this Home

Hemsworth 92618K

Share this home

Details

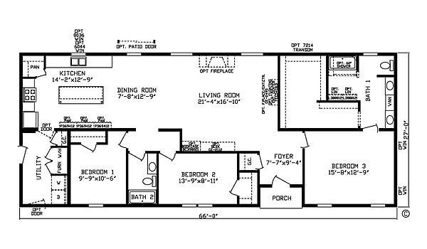
  • 3 Bedrooms
  • 2.00 Bathrooms
  • 1782 Square Feet
  • 27’0″ x 66’0″

PHotos

Tours & Videos

Specifications

Additional Specs: 42” Drawer Over Doors Construction
Exterior Wall On Center: 16" O.C.
Exterior Wall Studs: 2" X 6"
Floor Decking: 23/32" 4 X 8 Tongue and Groove OSB Floor Decking
Floor Joists: Open Joist Floors 16” O.C.
Roof Load: 50 lb Roof Load
Side Wall Height: 8’ Flat Ceilings
Insulation (Walls): R-21
Insulation (Ceiling): R-49
Additional Specs: Frost free faucet / 2 ¼ Brick mold door and window casing throughout
Front Door: 38” x 82” Decorator 6-Panel Steel Front Door
Rear Door: 38” x 82” Steel Decorator Rear Door
Roof Pitch: 5/12 roof pitch
Shingles: Owens Corning Limited Lifetime Architectural Shingles
Siding: Royal Double 4” Dutch Vinyl Lap Siding
Exterior Lighting: Rust Patina Light at Front & Rear Door
Exterior Outlets: 1 Exterior GFI Receptacle per Sidewall
Ceiling Texture: Textured Stippled Ceilings
Safety Alarms: Smoke Alarms / Carbon Monoxide Detectors
Window Type: White Low-E Vinyl Windows - Argon Filled
Wall Finish: ½” smooth finished drywall thoughout
Interior Doors: 6-Panel White Interior Doors Throughout
Window Decor: Window Valance - Living Room, Dining Room, Kitchen
Carpet Type Or Grade: 5 lb Carpet Pad / 250g Carpet / Tack Strip carpet installation
Electrical Service: 200 Amp Service
Furnace: High Efficiency Trane® Gas Furnace — Installed / Perimeter Heat
Washer Dryer Plumb Wire: Wire & Vent for Dryer
Water Heater: 40 Gallon Electric Water Heater
Water Shut Off Valves: Water Shut-Offs Throughout
Bathroom Cabinets: Hardwood
Bathroom Sink: Porcelain Lavs
Bathroom Lighting: Recessed LED Can Lights
Bathroom Flooring: Congolian Roll Goods
Bathroom Countertops: Formica
Bathroom Faucets: Single Lever Bath Faucet w/ Shower Head
Bathroom Fans: Power Exhaust Fan
Bathroom Additional Specs: Pop-Up Drains on Bath Sinks w/ Overflows
Bathroom Backsplash: Formica Backsplash
Bathroom Shower: 1-Piece Fiberglass Tub / Shower in Guest Bath
Kitchen Sink: 7” Deep Stainless Steel Kitchen Sink
Kitchen Refrigerator: Stainless Steel 18 CF 2-Door Frost Free Refrigerator
Kitchen Range Type: Black 30” Standard Clean Gas Range
Kitchen Range Hood: 30" Metal Range Hood
Kitchen Lighting: Recessed LED Can Lights
Kitchen Flooring: Congolian Roll Goods
Kitchen Faucets: Single Lever Kitchen Faucet w/ Sprayer
Kitchen Drawer Type: Dove Tail drawer construction
Kitchen Countertops: Formica
Kitchen Cabinetry: 30” Overhead Kitchen Cabinets / Hardwood Shaker Style Cabinetry
Kitchen Backsplash: Formica
¿Hablas español?