Manufactured

Essence Everest 27000

Built by: Cavco Nappanee

3D Home Tour

No 3d Tour Available

About this Home

Everest 27000

Share this home

Details

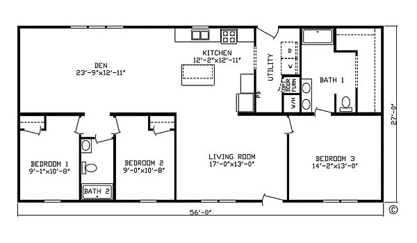
  • 3 Bedrooms
  • 2.00 Bathrooms
  • 1512 Square Feet
  • 27’0″ x 56’0″

PHotos

Tours & Videos

Specifications

Additional Specs: Positive Operating System / Rafters 24” O.C. / Ice & Water Barrier / Raised Panel Shutters (Hitch End Only on Single Wides & Door Side Only on Double Wides) / 7/16” OSB Sheathing / House Wrap / Foam Sealant Air Infiltration Barriers (All Windows & Doors)
Floor Decking: 19/32” Tongue & Groove OSB Floor Decking
Floor Joists: 16” O.C. Floor Joists
Interior Wall Studs: 2x4 Sidewalls
Side Wall Height: 8’ Sidewall Height with Flat Ceiling
Insulation (Floors): R-11 Floor Insulation
Insulation (Walls): R-11 Insulation
Insulation (Roof): R-29 Roof Insulation
Front Door: 36” Panel Steel Front Door with Deadbolt
Rear Door: 36” Panel Steel Rear Door with Deadbolt
Roof Pitch: Nominal 3/12 Roof Pitch
Shingles: TAMKO® 25 Year Shingled Roof
Siding: Royal® Double 4” Dutch Vinyl Lap Siding
Window Type: Kinro® White Low-E Easy Clean Tilt-Out Sash, Single-Hung Thermopane Windows, No Grids
Exterior Lighting: Porch Light at Front & Rear Doors
Exterior Outlets: Exterior GFI Weather Resistant Receptacle on Sidewall
Ceiling Texture: Textured Stippled Ceilings
Safety Alarms: Smoke Alarms
Wall Finish: 1/2” Decorative Vinyl on Gypsum Walls — Factory Select
Interior Doors: Pre-Hung 2-Panel Arch Top White Interior Doors / Triple Hinged Interior Doors
Interior Lighting: Recessed LED Can Lights in Kitchen, Dining Room & Bedrooms
Cabinetry & Counters: Wrapped Face Frames/Wrapped Cabinetry No Hardware, Shaker Style / OH Cabinets with Adjustable Shelves / Hidden Hinges / Dove Tail Drawer Construction / Side Mounted Drawer Guides
Carpet Type Or Grade: Congoleum® Armorflor® Roll Goods — Factory Select / Roll Goods Throughout
Interior Specs: 1-1/2” Door & Window Casing / Mini Blinds Throughout
Electrical Service: 100 AMP Service
Furnace: Gas Furnace
Shut Off Valves Throughout: Main Water Shut-Off Below Floo
Utility Cabinets: Wire Shelving in Pantry & Linen
Washer Dryer Hook Up: Plumbing for Washer
Washer Dryer Plumb Wire: Wire and Vent for Dryer
Water Heater: 30 Gallon Electric Water Heater
Door Hardware: Wall Mounted Door Stops / Satin Nickel Interior Door Knobs
Bathroom Faucets: Metal Faucets
Bathroom Fans: Power Exhaust Fan
Bathroom Additional Specs: Water Heater Access with Chalkboard Panels (Per Print) Baths / Pop-Up Drains on Bath Sinks with Overflows / GFI Bath & Kitchen Receptacles
Bathroom Toilet Type: Porcelain Toilets
Bathroom Bathtubs: 1 Piece Fiberglass Tub in Baths
Bathroom Mirror: Bathroom Mirrors with Clips
Kitchen Sink: 7” Deep Stainless Steel Kitchen Sink
Kitchen Refrigerator: Black 18 CF Frost Free Refrigerator
Kitchen Range Type: Black 30” Standard Gas Range
Kitchen Range Hood: Black 30” Range Hood
Kitchen Cabinetry: 40” Overhead Kitchen Cabinets / Shelf over Refrigerator & Range
¿Hablas español?