ManufacturedModular

Sapphire Series 28523B

Built by: Cavco Dorchester

3D Home Tour

No 3d Tour Available

About this Home

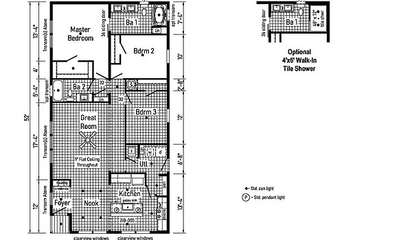
28523B built by Cavco Dorchester is a thoughtfully designed manufactured home offering 3 bedrooms and 2 bathrooms within 1,369 square feet. This home features a spacious living area that seamlessly connects to a modern kitchen, creating a perfect environment for family living and entertaining. Each bedroom offers a peaceful retreat, providing privacy and comfort for all. The Sapphire 28523B is an excellent choice for families seeking a stylish home that balances space, functionality, and modern design.

Share this home

Details

  • 3 Bedrooms
  • 2.00 Bathrooms
  • 1387 Square Feet
  • 26’8″ x 52’0″

PHotos

Tours & Videos

Specifications

No specification data available
¿Hablas español?